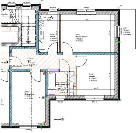
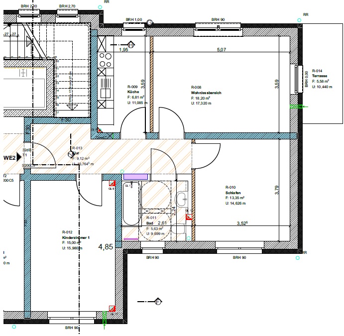
Details der Wohnung
Ort der Wohnung:
06542 Allstedt, Sophienstraße 12 a
Beschreibung
Das Objekt befindet sich in der Sophienstraße am Ortseingang von Allstedt. Einkaufsmöglichkeiten und andere Einrichtungen des täglichen Bedarfs sind fußläufig zu erreichen. Ein PKW-Stellplatz kann zusätzlich angemietet werden.
Das Haus befindet sich momentan noch in der Bauphase. Der Bezug ist ab 01.06.2025 geplant.
Die Wohnung befindet sich im Erdgeschoss und verfügt über eine Terrasse. Im Objekt ist ein Fahrstuhl vorhanden. Ein barrierefrei zugänglicher Nebenraum sowie eine Badewanne runden das Angebot ab. Beheizt wird die Wohnung durch eine moderne Fußbodenheizung.
Für die Anmietung der Wohnung ist ein Wohnberechtigungsschein erforderlich. Gerne geben wir Ihnen weitergehende Informationen dazu. Eine Besichtigung ist im Rahmen unserer Geschäftszeiten und nach Vereinbarung möglich.



