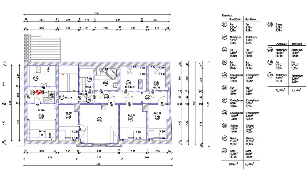
Details der Wohnung
Ort der Wohnung:
06542 Allstedt, Bahnhofstraße 10
Anzahl der Wohnräume:
5
Wohnfläche:
88,00m²
Lage der Wohnung:
Altbau
Etage der Wohnung:
3
Etagen insgesamt:
3
Bodenbelag:
Fliesen, Linoleum
Haustiere:
genehmigungspflichtig
Heizungsart:
Gas-Etagen-Heizung
Kaltmiete:
493,00 EUR
Nebenkosten:
126,00 EUR
Heizkosten enthalten:
Nein
Gesamtmiete:
619,00 EUR
Geschäftsanteile (Kaution):
1.479,00 EUR
verfügbar ab:
sofort
Beschreibung
Die Wohnung befindet sich in der Innenstadt von Allstedt. Sie liegt im Dachgeschoss eines Altbaus mit insgesamt 4 Woheinheiten.
Die Wohnung verfügt über 5 Zimmer. Beheizt wird sie über eine Gasetagenheizung. Der Vertrag mit dem Gasanbieter ist selbst abzuschließen. Das großzügig geschnitte Bad ist mit einer Badewanne ausgestattet. Alle Räume sind mit Fenstern ausgestattet. Besichtigungstermine könne gern vereinbart werden.



